top of page
국회도서관
Location : 1, Uisadang-daero, Yeongdeungpo-gu, Seoul, Korea
Principal use : Library
Design by OUTINSPACE.
Area : 511.13㎡ / 154.61py
Completion : APR. 2019
![]() | ![]() | ![]() |
|---|---|---|
![]() | ![]() | ![]() |
![]() | ![]() | ![]() |
![]() | ![]() | ![]() |
MOBILE / CLICK IMAGE TO VIEW FULL SIZE
6

1
2
3
4
5
6
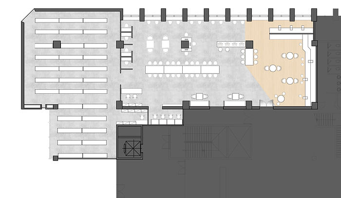
1. ENTRANCE
2. BENCH SOFA ZONE
3. BIG TABLE ZONE
4. BOOTH SOFA ZONE
5. BAR TABLE ZONE
6. COUNTER
bottom of page











